Nesse-Apfelstädt:
Tolle Drei-Zimmer-Mietwohnung
Objekt-Nr.: 5487

Wohnbereich

Ansicht Wohnanlage

Ausblick Balkon

Wohnzimmer

Wohnzimmer

Badezimmer

Badezimmer

Badezimmer

Küche

Zimmer

Zimmer

Diele

Abstellraum in der Wohnung

Balkonausgang

Tiefgaragenstellplatz (Beispiel)

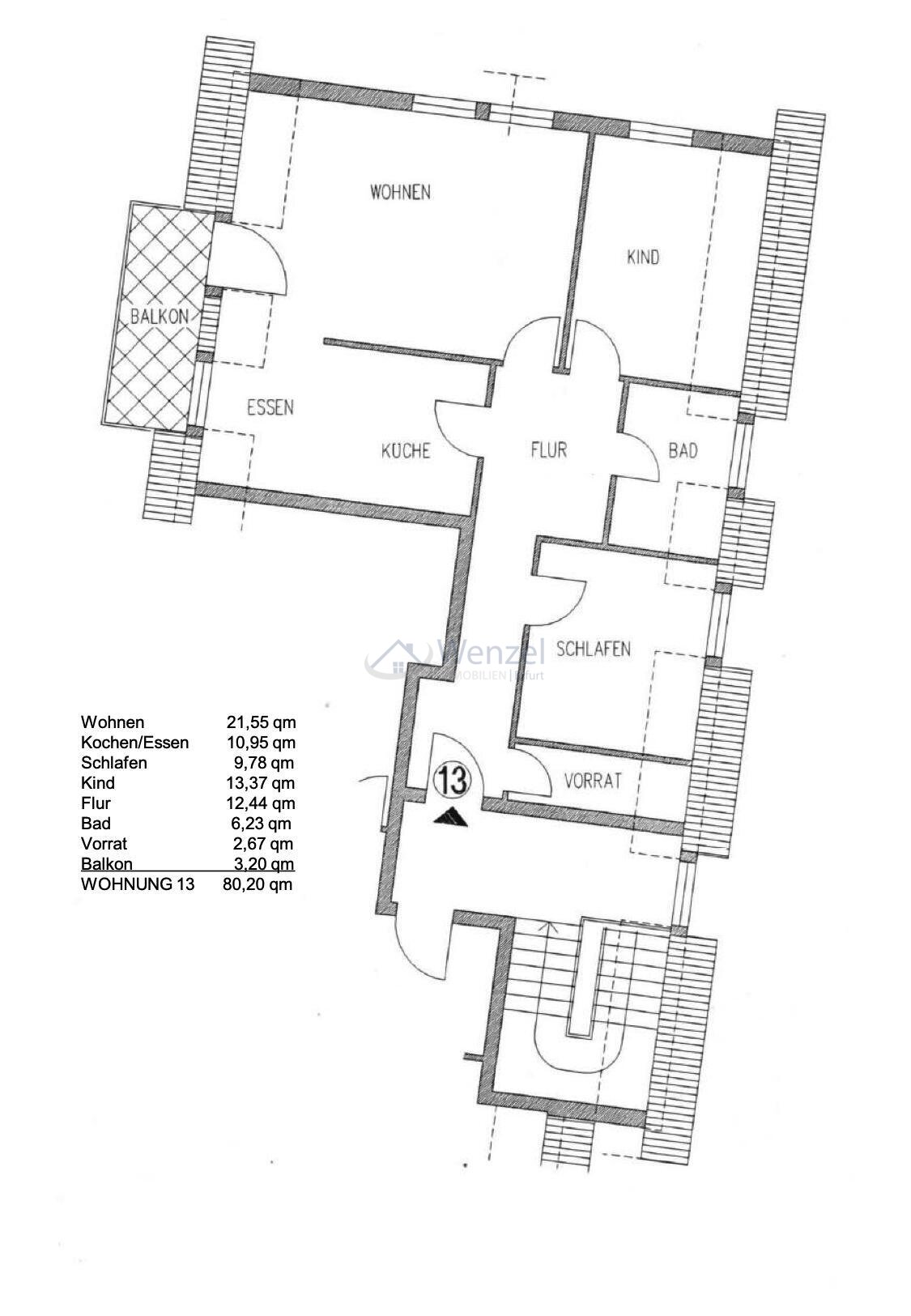
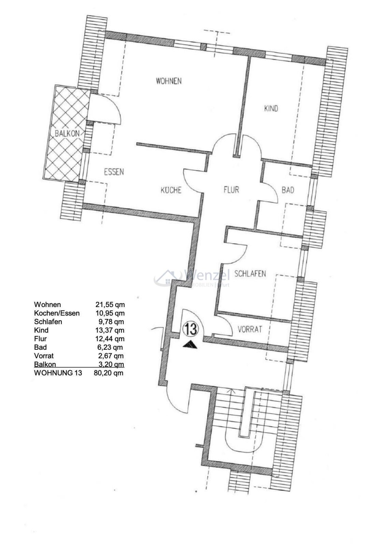
Grundriss
















mtl. Kaltmiete:
800 €
Wohnfläche ca.:
80,20 m²
Zimmeranzahl:
3
Diese im Jahr 2022 umfassend sanierte, helle und schöne Dreizimmerwohnung steht ab sofort zur Anmietung zur Verfügung.
Die Wohneinheit befindet sich im 2. Obergeschoss eines zweigeschossigen Gebäudeteils des im Jahr 1997 erbauten Wohn- & Geschäftshaus-Ensembles mit insgesamt 13 Wohnungen und verschiedenen Geschäften.
Die Wohnung, im Ortskern von Neudietendorf im Landkreis Nesse-Apfelstädt gelegen, bietet vieles, was man sich wünscht.
Erfurt und Gotha sind in wenigen Fahrminuten, per Kfz oder mit der Bahn erreichbar. Die BAB 4 sowie A71 ebenfalls.
Die Wohnung wurde Top-Modern renoviert, gut ausgestattet und glänzt im bezugsbereiten Zustand.
Der effiziente Grundriss der Wohnung verbindet alle Räume. Vom Flur der Wohnung aus gelangt man in die hellen, freundlichen Räume. Das moderne, neu renovierte Tageslicht-Badezimmer überzeugt mit einer Duschwanne sowie großformatigen Fliesen an Wand und Boden.…
Das freundliche Wohn-Esszimmer ist ausreichend groß und verfügt über den Zugang zum Süd-Balkon sowie zur Küche, welche zusätzlich auch vom Flur aus erreichbar ist.
In den Schlafräumen sind im Jahr 2025 Schallschutzfenster eingebaut worden. Ebenso die zusätzlichen Schalldämmlüfter der Marke "AEROPAC" in den Schlafräumen, welche für einen erholsamen Schlaf sowie ein gutes Raumklima sorgen.
Ein Abstellraum in der Wohnung bietet viel Komfort. Er erspart oftmals den Weg in das Kellerabteil.
Das Kellerabteil sowie ein Gemeinschaftsabstellraum stehen ebenso zur Verfügung wie der das attraktive Angebot ergänzende Tiefgaragenstellplatz, welcher für 50,- €/mtl. angemietet werden kann.
Im letzten Jahr wurde ein Glasfaseranschluss im Haus installiert. Die fortführende Verteilung im Haus muss noch umgesetzt werden.
Vereinbaren Sie jetzt Ihre Besichtigung mit uns, um dieses attraktive Angebot kennenzulernen.
Wir beantworten nur Anfragen mit Angabe aller Kontaktdaten des Interessenten (Name, Anschrift, Telefon, E-Mail).
Wohnungstyp: Dachgeschoss
Etagenanzahl: 3
Nebenkosten: 200 €
Kaution / Genossenschaftsanteile: 2.400
Heizkosten: sind in den Nebenkosten enthalten
Bad: Wanne, Fenster
Anzahl Schlafzimmer: 2
Anzahl Badezimmer: 1
Balkon: 1
Keller: ja
Umgebung: Apotheke, Bahnhof, Bus, Einkaufsmöglichkeit, Grundschule, Kindergarten, Wohnanlage
Anzahl der Parkflächen: 1 x Tiefgarage, pro Stück 50 €
Haustiere: nicht gestattet
Letzte Modernisierung/ Sanierung: 2022
Qualität der Ausstattung: gehoben
Baujahr: 1997
Bezugsfrei ab: 01.06.2026
Bodenbelag: Fliesen, Laminat
Zustand: vollständig renoviert
Heizung: Zentralheizung
Befeuerungsart: Gas
Energieausweistyp: Verbrauchsausweis - gültig vom 30.01.2026 bis 29.01.2036
Energieeffizienz-Klasse: B
Baujahr laut Energieausweis: 1996
Die von uns gemachten Informationen beruhen auf Angaben des Vermieters. Für die Richtigkeit und Vollständigkeit der Angaben kann keine Gewähr bzw. Haftung übernommen werden.
Das könnte Ihnen auch gefallen

Wenzel Immobilien Erfurt
Herr A. Wenzel
Adolf-Herzer Straße 10a
99094 Erfurt
Telefon: +49 361 74437395





















